fr

Votre recherche

Exclusivité
Nouveauté
Casteljaloux (47700)

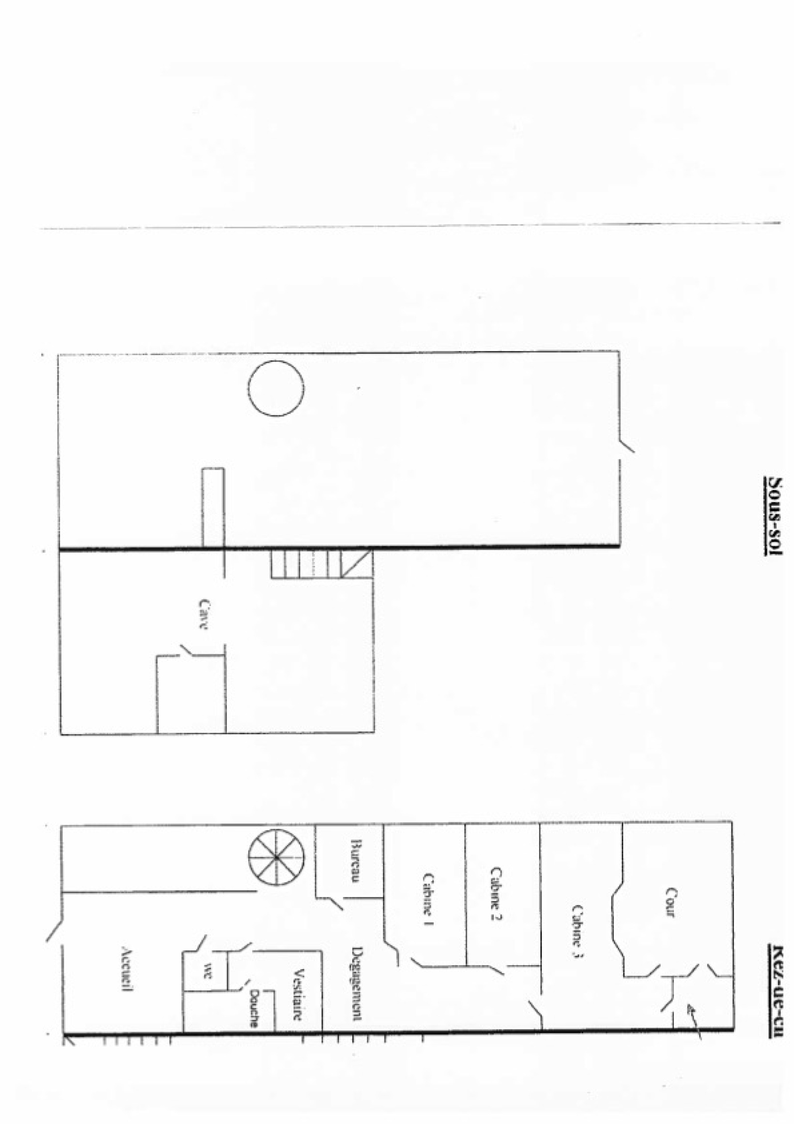
Local commercial - 172 m²

Local 172m² Casteljaloux

119 800 €
Ref : 2799
Découvrir le bien

LOCAL PROFESSIONNEL EN EXCLUSIVITÉ au cœur du centre ville de Casteljaloux (47700), seule ville thermale du département, avec une forte affluence saisonnière.

Caractéristiques du bien:

- Local loué 750€/mois depuis juillet 2021 (bail de 9 ans), boutique d'herboristerie axée sur le bien être.

- Surface magasin 20m² + réserves + sanitaires + WC + bureaux + cour avec accés extérieur.

- Sous-sol magnifique, aménagé, en pierre.

- Parking à proximité.

Changement de destination possible (habitation)

Investissement proposé par le Cabinet Carniel de Casteljaloux!

Les informations sur les risques auxquels ce bien est exposé sont disponibles sur le site www.georisques.gouv.fr.


TRAD_ZEPHYR_Caracteristique TRAD_ZEPHYR_Valeurs
Type de transac Local commercial
Code postal 47700
Superficie (m²) 172
TRAD_ZEPHYR_Caracteristique TRAD_ZEPHYR_Valeurs
Mode de chauffage Electrique
Type de chauffage Convecteur
Format de chauffage Individuel
TRAD_ZEPHYR_Caracteristique TRAD_ZEPHYR_Valeurs
Prix de vente honoraires inclus 119 800 €
DPE GES
  • Commerces et santé
  • Loisirs
  • Ecoles
  • Transports
  • Pratique
Contacter pour ce bien
L'agence
Téléphone 05 53 64 23 23
Adresse
30 Boulevard Raymond Fourcade 47200 Marmande

* Champ obligatoire

Les informations recueillies sur ce formulaire sont enregistrées dans un fichier informatisé par La Boite Immo agissant comme Sous-traitant du traitement pour la gestion de la clientèle/prospects de l'Agence / du Réseau qui reste Responsable du Traitement de vos Données personnelles. La base légale du traitement repose sur l'intérêt légitime de l'Agence / du Réseau. Elles sont conservées jusqu'à demande de suppression et sont destinées à l'Agence / au Réseau. Conformément à la loi « informatique et libertés », vous disposez des droits d’accès, de rectification, d’effacement, d’opposition, de limitation et de portabilité de vos données. Vous pouvez retirer votre consentement à tout moment en contactant directement l’Agence / Le Réseau. Consultez le site https://cnil.fr/fr pour plus d’informations sur vos droits. Si vous estimez, après avoir contacté l'Agence / le Réseau, que vos droits « Informatique et Libertés » ne sont pas respectés, vous pouvez adresser une réclamation à la CNIL. Nous vous informons de l’existence de la liste d'opposition au démarchage téléphonique « Bloctel », sur laquelle vous pouvez vous inscrire ici : https://www.bloctel.gouv.fr Dans le cadre de la protection des Données personnelles, nous vous invitons à ne pas inscrire de Données sensibles dans le champ de saisie libre.
Ce site est protégé par reCAPTCHA, les Politiques de Confidentialité et les Conditions d'Utilisation de Google s'appliquent.

Découvrir nos outils