fr

Votre recherche

Poussignac (47700)

8 pièces - 193 m²

Maison avec deux logements

180 000 €
Ref : 2900
Découvrir le bien

Située à 5 mn de Casteljaloux venez découvrir cette maison landaise composée de deux logements indépendants, idéale pour accueillir votre famille ou pour un projet locatif.

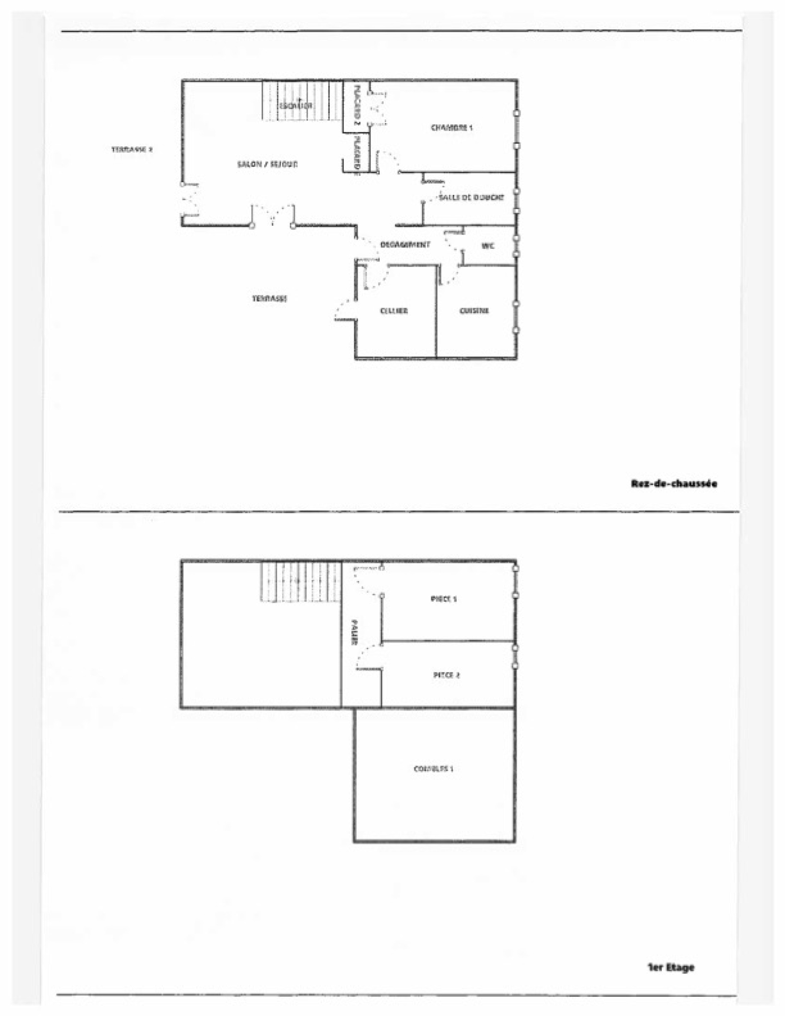
Le premier logement, de type 4, d'environ 113m² se compose d'une grande cuisine (18m²), d'un séjour, de 3 chambres, d'une salle d'eau et d'un wc. C'est un appartement en bon état, chauffage électrique, menuiseries en PVC double vitrage.

Le deuxième nécessite des travaux de rénovation, d'une surface d'environ 80m², il est composé d'un séjour cathédrale, d'une cuisine indépendante, d'une chambre, d'une salle d'eau et d'un wc. Une mezzanine aménagée complète ce bien.

Chaque logement possède son compteur d'eau, d'électricité et son assainissement.

L'ensemble est posé sur un terrain généreux de plus de 8700 m², avec un puits, offrant un cadre paisible et verdoyant. A visiter impérativement!

Les informations sur les risques auxquels ce bien est exposé sont disponibles sur le site Géorisques : www.georisques.gouv.fr


Les informations sur les risques auxquels ce bien est exposé sont disponibles sur le site Géorisques
TRAD_ZEPHYR_Caracteristique TRAD_ZEPHYR_Valeurs
Code postal 47700
surface terrain 8 707 m²
Nombre de chambre(s) 4
Nombre de pièces 8
TRAD_ZEPHYR_Caracteristique TRAD_ZEPHYR_Valeurs
Nb de salle d'eau 2
Terrain arboré OUI
TRAD_ZEPHYR_Caracteristique TRAD_ZEPHYR_Valeurs
Copropriété NON
TRAD_ZEPHYR_Caracteristique TRAD_ZEPHYR_Valeurs
Prix de vente 180 000 €
Les honoraires d'agence seront intégralement à la charge du vendeur  
Taxe foncière annuelle 950 €
DPE GES
  • Commerces et santé
  • Loisirs
  • Ecoles
  • Transports
  • Pratique
Contacter pour ce bien
L'agence
Téléphone 05 53 64 23 23
Adresse
30 Boulevard Raymond Fourcade 47200 Marmande

* Champ obligatoire

Les informations recueillies sur ce formulaire sont enregistrées dans un fichier informatisé par La Boite Immo agissant comme Sous-traitant du traitement pour la gestion de la clientèle/prospects de l'Agence / du Réseau qui reste Responsable du Traitement de vos Données personnelles. La base légale du traitement repose sur l'intérêt légitime de l'Agence / du Réseau. Elles sont conservées jusqu'à demande de suppression et sont destinées à l'Agence / au Réseau. Conformément à la loi « informatique et libertés », vous disposez des droits d’accès, de rectification, d’effacement, d’opposition, de limitation et de portabilité de vos données. Vous pouvez retirer votre consentement à tout moment en contactant directement l’Agence / Le Réseau. Consultez le site https://cnil.fr/fr pour plus d’informations sur vos droits. Si vous estimez, après avoir contacté l'Agence / le Réseau, que vos droits « Informatique et Libertés » ne sont pas respectés, vous pouvez adresser une réclamation à la CNIL. Nous vous informons de l’existence de la liste d'opposition au démarchage téléphonique « Bloctel », sur laquelle vous pouvez vous inscrire ici : https://www.bloctel.gouv.fr Dans le cadre de la protection des Données personnelles, nous vous invitons à ne pas inscrire de Données sensibles dans le champ de saisie libre.
Ce site est protégé par reCAPTCHA, les Politiques de Confidentialité et les Conditions d'Utilisation de Google s'appliquent.

Découvrir nos outils